

תכנון "חדר שלווה" - מרחב סדנא טיפולית באמנות ודרמה בישיבה תיכונית בבית אל. הטיפול באומניות הוא טיפול בדרך חושית, חווייתית, שעוקפת את השכל, את המחשבה הרציונלית, וכך מאפשרת למטפל להגיע למקומות עמוקים ומשמעותיים יותר. לכן יש חשיבות רבה לתכנון ועיצוב החלל העוטף והמכיל את הפעילות הטיפולית.
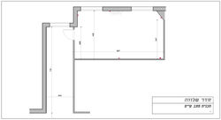
קיבלנו כאן כיתה ארוכה ופיסת פרוזדור, שהחיבור שלהם יחד, יצר חלל המשכי בצורת "ר". מייד בכניסה יצרנו חלל קטן הניתן להפרדה וניתוק, בעל תפקיד כפול: גם מבואת כניסה המקשרת בין החוץ לפנים, מאפשרת "קליטה", מקום לתלייה ואחסון של תיקים, מעילים. וגם פינת התבודדות שקטה וסטרילית, שאליה ניתן לפרוש במהלך הפעילות.
מיד אחרי המבואה נמצאת פינת התכנסות, שעדיין לא נמצאת בתוך החלל עצמו, אבל משקיפה עליו. אזור ישיבה לשיחה ומפגש ראשוני, חימום והתאקלמות לקראת הפעילות,שמתחילה בפינת יצירה "מלוכלכת".
הבמה ואזור ההכנה וההתחפשות נמצאת בסוף, בקצה של החלל, היא לב הפעילות של החדר והמהווה מעין "אפסיס" מקום שהולכים לקראתו, שיא החוויה והפעילות.
החדר כולו מהווה יחידה אחת של פעילות ושל טיפול, המורכבת מחלקים ושלבים שונים.
?מה
תכנון מרחב לטיפול בדרמה
?איפה
בית אל
?מתי
2018
![]() | ![]() | ![]() | ![]() | ![]() |
|---|---|---|---|---|
![]() | ![]() | ![]() | ![]() | ![]() |
![]() | ![]() | ![]() | ![]() | ![]() |
![]() | ![]() | ![]() | ![]() | ![]() |
![]() | ![]() | ![]() | ![]() | ![]() |
![]() | ![]() |






























